
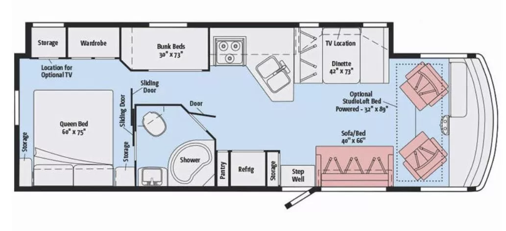
A138SF - 32' 2016 Itasca Sunstar 31BE w/Slide - Bunk House
Click to Zoom
(Floor plan is NOT drawn to scale. Length of vehicle is approximate. Buyer is responsible for verifying actual length. PPL Motor Homes compiled this list of features, specifications, equipment and options as a guide. No representation or warranties, either express or implied, are made as to the accuracy of the information herein. Please verify for yourself all items listed before purchase.)
This vehicle has been SOLD!
Location:
Summerfield, FL
Mileage: 7,530
PRODUCT DESCRIPTION
32' 2016 Itasca Sunstar 31BE w/Slide - Bunk House
Item A138SF
This 2016 Sunstar 31BE has a V10 Ford Engine On a Ford Chassis, 1 Slide-out, Onan Gas Generator, 2 Ducted Air Conditioners, Levelers, Double Door Gas/110v/12v Norcold Refrigerator, Automatic Main Awning, Backup Camera, Outside Entertainment System, 3 TVs, Outside Shower, Microwave, 3 Burner Range, Oven
