
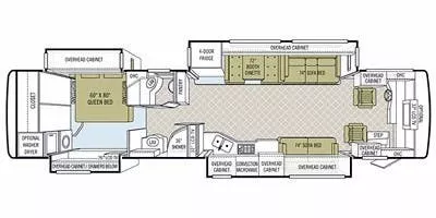
D713CL - 40' 2011 Tiffin Phaeton 40QTH 380hp Cummins w/4 Slides
(Floor plan is NOT drawn to scale. Length of vehicle is approximate. Buyer is responsible for verifying actual length. PPL Motor Homes compiled this list of features, specifications, equipment and options as a guide. No representation or warranties, either express or implied, are made as to the accuracy of the information herein. Please verify for yourself all items listed before purchase.)
This vehicle has been SOLD!
PRODUCT DESCRIPTION
40' 2011 Tiffin Phaeton 40QTH 380hp Cummins w/4 Slides
The 2011 Tiffin Phaeton 40QTH is a luxurious Class A diesel motorhome built on a Freightliner raised-rail chassis and powered by a 380-hp Cummins ISL 8.3L turbocharged engine paired with an Allison 3000 MH 6-speed automatic transmission. Measuring 40.42 feet in length with a GVWR of 32,000 lbs, it offers a towing capacity of 10,000 lbs. The floorplan features four slide-outs, creating a spacious interior with 7-foot ceilings and porcelain tile flooring. The living area includes ultra-leather furniture and a smart TV. The kitchen is equipped with a pull-out island, solid surface countertops, stainless steel double sinks, a 3-burner cooktop, convection microwave, and a residential-size refrigerator with ice maker. The master suite boasts a king-size memory foam mattress, ceiling fan, 36" flat-screen TV, stacked washer and dryer, and a spacious bathroom with dual sinks, a 36" molded fiberglass shower, and ample storage. Exterior amenities include full body paint, tinted thermal dual-pane windows, automatic awnings, automatic hydraulic leveling system, slide-out covers, rear and side view cameras, a 2000-watt inverter, and a 50-amp service. With a 100-gallon fuel tank and 90-gallon fresh water capacity, the Phaeton 40QTH is designed for extended travel in comfort and style.
