
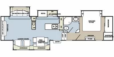
F249CL - 38' 2012 Coachmen Brookstone 370MB w/4 Slides
(Floor plan is NOT drawn to scale. Length of vehicle is approximate. Buyer is responsible for verifying actual length. PPL Motor Homes compiled this list of features, specifications, equipment and options as a guide. No representation or warranties, either express or implied, are made as to the accuracy of the information herein. Please verify for yourself all items listed before purchase.)
This vehicle has been SOLD!
PRODUCT DESCRIPTION
38' 2012 Coachmen Brookstone 370MB w/4 Slides
This 2012 Coachmen Brookstone 370MB Is Looking For New Adventures! This Entire Trailer Is Being Sold As Is And Is Priced Aggressively. Highlights Include... "Arctic Eskimo Package", Electric Landing Gear, Rear Power Jacks, 4 Slide-Outs, 2 Roof-Ducted Air Conditioners, Double Door Magic Chef Refrigerator, Automatic Main Awning, One-Piece Combo Washer/Dryer, Outside Speakers, 3 TVs, Outside Shower, Fireplace, Central Vacuum System, Microwave, 3 Burner Range, Oven, And More! Ask About PPL's Financing Options. Make This Brookstone Your New Home Away From Home! Please Call About Known Cosmetic Conditions.
