
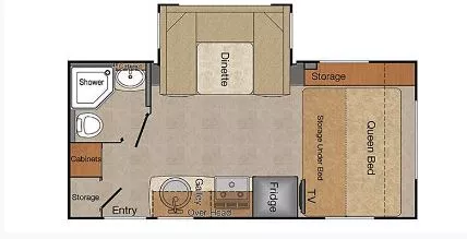
T299SF - 16' 2017 Lance 1685 w/Slide
(Floor plan is NOT drawn to scale. Length of vehicle is approximate. Buyer is responsible for verifying actual length. PPL Motor Homes compiled this list of features, specifications, equipment and options as a guide. No representation or warranties, either express or implied, are made as to the accuracy of the information herein. Please verify for yourself all items listed before purchase.)
This vehicle has been SOLD!
PRODUCT DESCRIPTION
16' 2017 Lance 1685 w/Slide
This 2017 Lance 1685 has an Electric Tongue Jack, 1 Slide-out, 1 Ducted Air Conditioner, Double Door Gas/12v Norcold Refrigerator, Automatic Main Awning, Solar Panel, Outside Speakers, TV, DVD Player, Outside Shower, Microwave, 3 Burner Range, Oven
The 2017 Lance 1685 is a compact yet feature-packed travel trailer perfect for outdoor adventures. With its sleek design and durable construction, it offers comfortable living spaces for small families or couples. Key features include a spacious interior layout with sleeping accommodations for up to four people, a fully equipped kitchenette, a cozy dinette area, and a bathroom with shower facilities. Additionally, the 1685 boasts the convenience of two solar panels, providing eco-friendly power solutions for off-grid excursions, ensuring a sustainable and enjoyable camping experience.
