CLOSE MENU
RVs for Sale
All Vehicles
Class A Motorhomes
Class C & B Motorhomes
Diesel Motorhomes
Fifth Wheels
Toy Haulers
Travel Trailers
View All
Consign My RV
Consign My RV
Sell to PPL
View All
Trade RV
Parts Superstore
Electrical, Plumbing & LP Gas
Entertainment, Comfort & Camping
Maintenance & Hardware
RV Appliances
Towing, Hitches, Jacks, Chassis
View All
RV Finance
Contact an RV Financing Expert
Financing an RV
Online Credit Application
Pre-Qualify No SSN Required
View All
RV Service
Free Booklet!
About Us
Contact Us
A Full Service RV Dealership & the RV Consignment Leader Since 1972
Home
Careers
About Us
Locations
Contact Us
Login / Register
Sell My RV NOW!
All
RVs for Sale
Parts Superstore
Content Pages
Questions?
1-800-755-4775
0
Menu
Sell My RV NOW!
RVs for Sale
All Vehicles
Class A Motorhomes
Class C & B Motorhomes
Diesel Motorhomes
Fifth Wheels
Toy Haulers
Travel Trailers
Consign My RV
Consign My RV
Sell to PPL
Trade RV
Parts Superstore
Electrical, Plumbing & LP Gas
Electrical
Fresh Water
Lighting
LP Gas
Sanitation
Entertainment, Comfort & Camping
Accessories
Camper Collection From RV Nana
Cargo Management
Electronics
Outdoor Living
RV Furniture
Steps & Ladders
Sun & Shade
Maintenance & Hardware
Cleaners
Covers
Hardware
Roofing & Sealants
RV Appliances
Furnaces
Generator
Other Appliances
Ranges
Refrigerators, Freezers
RV Air Conditioners and Parts
Washers, Dryers
Water Heaters
Towing, Hitches, Jacks, Chassis
Automotive
Hitches
Jacks & Levelers
Ride Control
Trailer Wiring
Vehicle Towing
Wheels & Brakes
RV Finance
Contact an RV Financing Expert
Financing an RV
Online Credit Application
Pre-Qualify No SSN Required
RV Service
Free Booklet!
PPL Home
>
RVs for Sale
>
Used Itasca RVs
Used Itasca RVs
Show
12
24
48
96
300
View All
Showing 49 - 58 of 58
My Wish List
Include pictures/floor plans
Sort by
Price: High to Low
Price: Low to High
Year: Low to High
Year: High to Low
Size: Low to High
Size: High to Low
Stock #: Low to High
Stock #: High to Low
RV Location
Houston, Tx
Cleburne, Tx
New Braunfels, Tx
Summerfield, Fl
El Reno, Ok
Price
$10000-$15000
$15000-$20000
$20000-$25000
$25000-$50000
$50000-$100000
$100000 +
Size
21 To 25
26 To 30
31 To 35
36 To 40
Over 41
Year
2001 To 2005
2006 To 2010
2011 To 2015
Over 2016
Mileage
20000 And Under
20000 To 30000
30000 To 40000
40000 To 50000
50000 To 60000
60000 To 70000
Over 70000
Appearance Rating
Excellent
Very Good
Good
Fair
New Arrival
No
Manufacturer
Itasca
Brand
Cambria
Ellipse
Ellipse Series
Horizon
Latitude
Meridian
Navion
Navion Iq
Reyo
Solei
Spirit
Spirit Series
Suncruiser
Sunflyer
Sunova
Sunstar
Sunstar Lx
Sunstar Series
Model
23b
24dl
24g
24j
24v
25q
25t
26a
26he
27l
27n
28b
29b
29r
30j
30t
31be
31k
32v
34b
34t
35f
35g
35p
35u
36g
37g
38q
39qd
39t
39w
40kd
40u
42ad
42e
42qd
M-39k
Slides
0
1
2
3
4
Ducted AC(s)
1
2
3
Non-Ducted AC(s)
0
1
Basement AC
No
Yes
Sleeps
2
3
4
5
6
7
8
Bunk Beds
No
Yes
King Beds
1
2
Queen Beds
1
2
Double Beds
1
2
3
Washer Dryer
1pc W+D Combo
W+D Stackable
W/D Connections
2pc Wash+Dryer
Outdoor Kitchen
No
Chassis
Dodge 3500
Ford
Ford 450
Freightliner
Sprinter
Workhorse
Engine Manufacturer
Caterpillar
Chevy
Cummins
Ford
Mercedes Benz
Engine Size
2.7l
3.0l V-6
3.0l V6
6.7l
6.8 V10
6.8l V-10
6.8l V10
7.2l
8.1l
8.1l V8
8.1l Vortec
8.9 Isl
8.9 Liter
8.9l Isl
Diesel
I-6 6.7l
V-6 3.0l
V10
V10 6.8
V6
V6 3.0l
V8
Engine HP
154
188
300
305
310
320
330
340
350
362
380
400
450
Exhaust Brake
No
Yes
Main Awning
Automatic
Yes
Arctic/All Seasons
No
Yes
Fireplace
No
Yes
Bath
Shower
Bath And A Half
Solar Panel
No
Yes
Levelers
Automatic
Manual
Weekly Special
No
Refrigerator Residential
No
Yes
Tag Axle
No
Yes
Stock #
Year▼
Size and Description
Price
D732SF
D732SF - 36' 2006 Itasca Meridian 36G 300hp Cummins w/2 Slides
Sold
2006
36' 2006 Itasca Meridian 36G 300hp Cummins w/2 Slides
M179
M179 - 26' 2006 Itasca Cambria 26A w/Slide
Sold
2006
26' 2006 Itasca Cambria 26A w/Slide
M124SF
M124SF - 27' 2006 Itasca Spirit Series 27L w/2 Slides
Sold
2006
27' 2006 Itasca Spirit Series 27L w/2 Slides
D704SF
D704SF - 36' 2006 Itasca Meridian 36G 350hp Cummins w/2 Slides
2006
36' 2006 Itasca Meridian 36G 350hp Cummins w/2 Slides
$32,000
More Details
Pre-Qualify
No SSN Required
A121
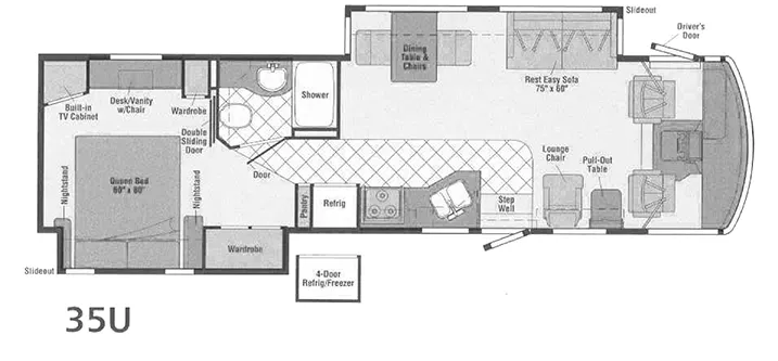
A121 - 35' 2005 Itasca Suncruiser 35U w/2 Slides
Sold
2005
35' 2005 Itasca Suncruiser 35U w/2 Slides
D113NB
D113NB - 38' 2004 Itasca Meridian 36G 330hp Caterpillar w/2 Slides
Sold
2004
38' 2004 Itasca Meridian 36G 330hp Caterpillar w/2 Slides
A714SF
A714SF - 35' 2003 Itasca Suncruiser 35U w/2 Slides
Sold
2003
35' 2003 Itasca Suncruiser 35U w/2 Slides
A717CL
A717CL - 39' 2003 Itasca Sunflyer 39T w/2 Slides
Sold
2003
39' 2003 Itasca Sunflyer 39T w/2 Slides
D704CL
D704CL - 39' 2002 Itasca Horizon 39QD 330hp Caterpillar w/2 Slides
Sold
2002
39' 2002 Itasca Horizon 39QD 330hp Caterpillar w/2 Slides
Image Coming Soon
A740CL
A740CL - 33' 2002 Itasca Suncruiser 32V w/2 Slides
2002
33' 2002 Itasca Suncruiser 32V w/2 Slides
$14,444
More Details
Pre-Qualify
No SSN Required